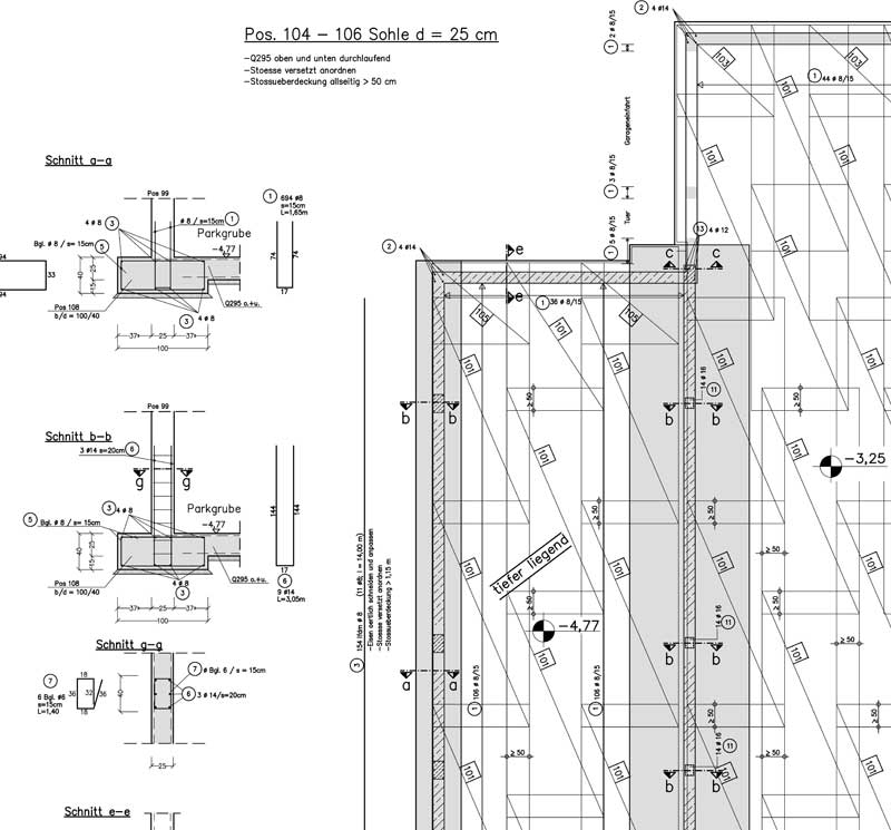
Ein Bewehrungsplan ist ein Werkplan im Bauwesen, der die Bewehrung eines Stahlbetonbauteiles darstellt. Bewehrungspläne sind reine Ausführungspläne, nach denen die Betonstähle in der Biegerei abgelängt sowie gebogen (Stahlauszug) und anschließend vom Stahlbetonbauer oder vom Flechter auf der Baustelle verlegt werden.
Die Bewehrungspläne werden auf der Grundlage einer durch einen Bauingenieur zuvor erstellten Statik angefertigt. Für die Richtigkeit der statischen Berechnungen und darauf aufbauend der Bewehrungspläne ist der Ingenieur verantwortlich.
Bewehrungspläne werden durch Bauzeichner oder Bautechniker gezeichnet. Weitere Grundlage für Bewehrungspläne sind meistens die dazugehörigen Schalpläne, die die Form des Stahlbetonbauteils darstellen. Zum größten Teil werden Bewehrungspläne heute am Computer mit Hilfe von CAD-Programmen erstellt. Selten werden Bewehrungspläne noch von Hand gezeichnet.
In Deutschland existiert außer für kleinere Bauwerke noch das Vieraugenprinzip in Form einer Prüfung der Bewehrungspläne, ebenso wie der statischen Berechnung, entweder durch einen Sachverständigen oder einen Prüfingenieur für Bautechnik.




